Willkommen zum zweiten Teil unseres Synchronstudio-Baus. Drei Wochen sind vergangen und es geht fleißig voran. Aber wie genau bauen wir unsere neuen Studios eigentlich?
Nun, die Option schnell mal eben alle Materialien im Baumarkt zu kaufen, selber sägen und schrauben kam für uns nicht in Frage. 400m² wollen schließlich gut und effizient genutzt werden. Allem voran ging die Planung und das Raumdesign. Allein damit hatten wir bereits mehrere Monate verbracht – mal leiser und mal lauter.
Entworfen wurde hauptsächlich mit „Sweet Home 3D" – einem kostenlosen CAD Programm für Mac OS X und Windows. Für das Programm haben wir uns entschieden weil sich mit relativ wenig Aufwand bereits gute Ergebnisse erzielen lassen. Und obwohl es sich um Freeware handelt (vielleicht aber auch gerade deshalb) konnten wir so bereits sehr schnell erste Pläne erzeugen und uns diese sogar als 3D Modell ausgeben lassen.
Dabei haben wir die genauen Raummaße ins Programm übertragen und damit begonnen, einzelne Räume für unsere neue Studios zu entwerfen.
Das Unterfangen war gar nicht so leicht denn schließlich müssen wir alleine drei Studios (also Aufnahmeraum + Regieraum) unterbringen.
Abbildung 1 So sieht unser neues Gewerbe aus. Volle 375m² Nutzfläche nur für uns und spannende Projekte …
Abbildung 2„Sweet Home 3D" erstellt unswunderbar gerenderte Bilder - zumindest für den ersten Eindruck. Außerdem konnten wir bereits Mitarbeiter einfügen. Sie wollten unbedingt in Körnern bezahlt werden, sind aber nicht die reinlichsten ...
Jeder Raum soll als Raum-in-Raum-Konzept gestaltet sein, um größtmöglichen Schutz vor äußeren Schalleinflüssen zu haben. Mit einem Mindestmaß von 20m² pro Raum sind so bereits fast ein Drittel unserer Gesamtfläche verbraucht. Gedacht ist, dass alle Sprecher mit dem Rücken zur Regie positioniert sind, um eine maximale Textkonzentration zu gewährleisten. Außerdem sollten sich die Sprecher nicht von einfallendem Tageslicht gestört fühlen. Nun könnte man sagen dass es damit noch genügend Platz gibt und prinzipiell ist dem auch so doch es fehlen schließlich noch ein paar weitere Räume. Wo soll der Empfang hin, wo die Sanitärräume? Wie groß darf eine potenzielle Küche sein und wie sieht es eigentlich mit zusätzlichen Schnitt- und Arbeitsräumen allgemein aus? Sind alle Räume barrierefrei, gut zugänglich und im Brandfall richtig dimensionierte Fluchtwege vorhanden? Wieviel Platz bleibt nach Abzug der dreifachen Wände durch das Raum-in-Raum-Konzept? Und dann steht noch die Frage – die schwerste überhaupt – wie sich all diese Räume zusammen optimal auf der Gesamtfläche verteilen lassen.
Anfangs hatten wir bspw. noch vier Studios geplant doch konnten wir die damalige Gewerbefläche nicht anmieten. Wir hätten diese vier Studios sicherlich auch in unseren aktuellen Räumlichkeiten in Marienfelde umsetzen können, dann wären jedoch mindestens zwei Studios sehr klein geworden. Deshalb entschieden wir uns für ein großes Prestige-Studio – quasi das Vorzeigeobjekt wenn es um ebenso große Aufträge geht und man gemeinsam mit Kunden und Sprechern bei maximalem Komfort arbeiten möchte. Ferner ist für die Raumgrößen auch die Platzierung der späteren Abhörmonitore nicht unwichtig. Wie wir bereits vorher geschrieben hatten, möchten wir unsere neuen Räumlichkeiten mit Lautsprechern zur Mehrkanalmischung ausstatten. Dabei darf natürlich Dolby 5.1, 7.1 und Atmos Home nicht fehlen. Mittels der „5.1-Channel Production Guidelines" haben wir uns einen Kreis mit entsprechenden Linien, ausgehend vom Mittelpunkt erzeugt. Die Linien zeigen dabei die Standpunkte der jeweiligen Monitore an und helfen uns, diese in den jeweiligen Regieräumen zu platzieren. Die Dolby Guidelines, hier ein Link (bitte klicken), sind im Übrigen ein Muss für jeden, der sich für die Mehrkanalmischung interessiert denn sie geben viel Aufschluss über Raumgröße und Anordnung der Lautsprecher. Auf den folgenden Bildern könnt ihr nachverfolgen, wie sich unsere Planung nach und nach verändert hat, bis wir schließlich alle Räume so hatten, wie sie sein sollten. Im nächsten Blogbeitrag geht es spannend weiter …
Abbildung 3 Der Dolby-Kreis: Schnell zurecht gebastelt oder herauskopiert können wir so ganz einfach die Postion unseres 5.1 Setups ermitteln, das gleiche gilt für 7.1/Dolby Atmos Home.
Abbildung 4 Unsere ersten Räumlichkeiten hatten wir noch ein kleines bisschen anders geplant als gedacht. Hier der ursprüngliche Bauplan mit 4 Studios und 3 Projektmanager/Cutter Räumen.
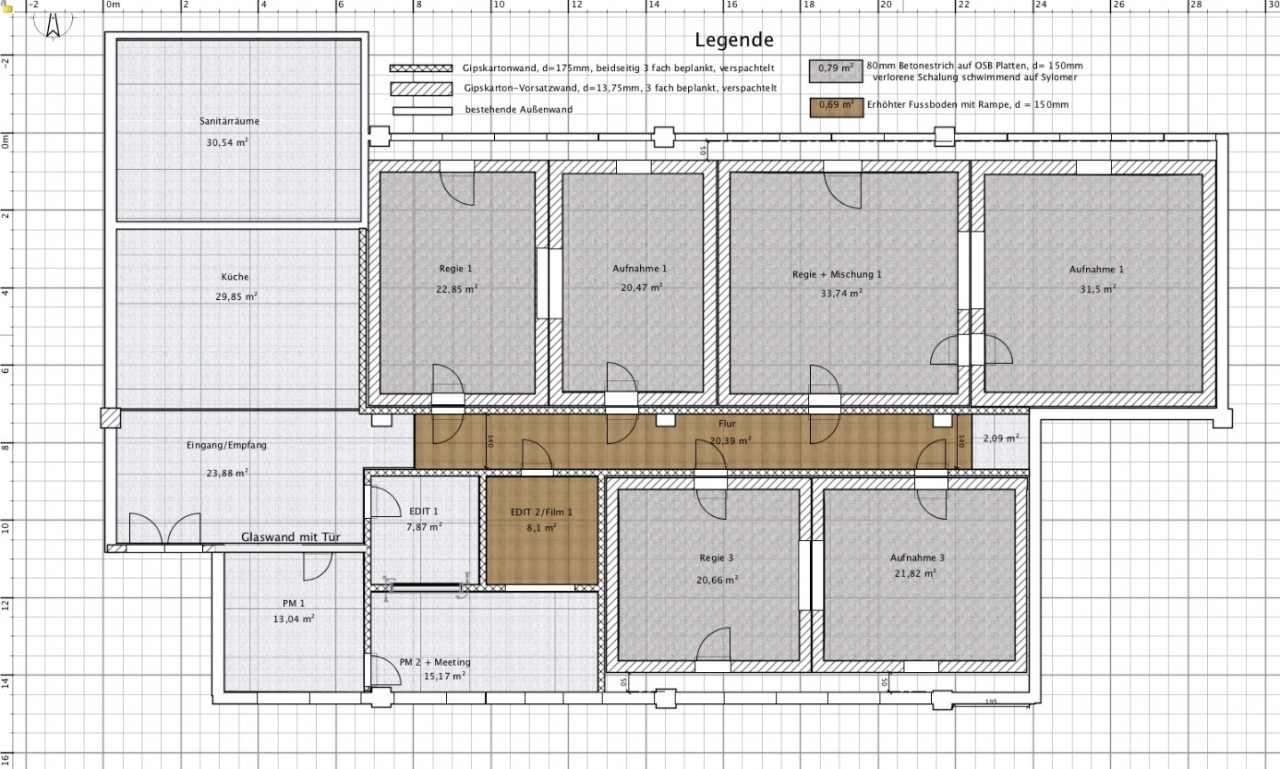
Abbildung 5 In den neuen Räumlichkeiten in Marienfelde mussten wir ein bisschen umplanen. Ein Studio ist zugunsten eines großen Hauptstudios gewichen. Die Anordnung ist nicht mehr symmetrisch aber dafür optimal an die räumlichen Gegebenheiten angepasst. Es gibt keinen zentralen Server Raum mehr, sondern jedes Studio bekommt einen eigenen kleinen Server Platz. Interessant ist auch die Legende oben drüber, wo u. a. auch der Aufbau der Studioböden genauer beschrieben wird.
Abbildung 6 Hier die Räume in der modellierten 3D Ansicht. So lässt sich ein bisschen besser einschätzen, wie groß die jeweiligen Räume später aussehen werden.Die Wände haben jetzt auch die richtige "Dicke" inkl. Akustik Wände.
Abbildung 7 Es gibt noch ein paar letzte Anpassungen und die ersten virtuellen Möbel sind auch schon drin. Außerdem haben wir hier unseren virtuellen Dolby-Kreis zur Anordnung der Mehrkanal-Lautsprecher. Der Kreis ist diesmal der 7.1 Kreis.
Deprecated: Creation of dynamic property EasyBlogSocialButtonExternal::$post is deprecated in /home/f09semfe5h5j/public_html/new.mixwerk.com/administrator/components/com_easyblog/includes/socialbuttons/adapters/external.php on line 42
Seit 15 Jahren arbeitet er mit Sprechern im Studio. Nebenbei betreut er Projekte in bis zu 20 Sprachen. Als Diplom Kaufmann weiß er, wie man Projekte schnell und kostengünstig kalkuliert. Er hat vor 10 Jahren mal ziemlich erfolgreich Dance und House Musik produziert, jetzt arbeitet er mehr an klassischen Kompositionen für Spiele und Imagefilme. In seiner Freizeit baut er Studio Hardware selber.
Deprecated: Creation of dynamic property EasyBlogPost::$isImage is deprecated in /home/f09semfe5h5j/public_html/new.mixwerk.com/administrator/components/com_easyblog/includes/themes/helpers/post/entry.php on line 415
Deprecated: Creation of dynamic property EasyBlogPost::$isImage is deprecated in /home/f09semfe5h5j/public_html/new.mixwerk.com/administrator/components/com_easyblog/includes/themes/helpers/post/entry.php on line 415
Deprecated: Creation of dynamic property EasyBlogPost::$isImage is deprecated in /home/f09semfe5h5j/public_html/new.mixwerk.com/administrator/components/com_easyblog/includes/themes/helpers/post/entry.php on line 415
Deprecated: Creation of dynamic property EasyBlogPost::$isImage is deprecated in /home/f09semfe5h5j/public_html/new.mixwerk.com/administrator/components/com_easyblog/includes/themes/helpers/post/entry.php on line 415
Deprecated: Creation of dynamic property EasyBlogPost::$isImage is deprecated in /home/f09semfe5h5j/public_html/new.mixwerk.com/administrator/components/com_easyblog/includes/themes/helpers/post/entry.php on line 415
Anim pariatur cliche reprehenderit, enim eiusmod high life accusamus terry richardson ad squid. 3 wolf moon officia aute, non cupidatat skateboard dolor brunch. Food truck quinoa nesciunt laborum eiusmod. Brunch 3 wolf moon tempor, sunt aliqua put a bird on it squid single-origin coffee nulla assumenda shoreditch et.
Mit den Sprechern war es auch wieder super und Sie wussten sofort, welchen Stil ich meine. Vielen Dank nochmal für die tolle Zusammenarbeit
Gut, schnell - und immer freundlich. Ich kann das Mixwerk nur weiterempfehlen!
Seit 7 Jahren arbeiten wir nun mit Mixwerk zusammen. Wir sind absolut zufrieden und können Mixwerk nur weiterempfehlen. Dafür gibt es handfeste Gründe: Die Zusammenarbeit ist immer unkompliziert und engagiert. Wir haben glaube ich noch nie den Satz: „geht nicht“ gehört. Das Team ist immer sehr freundlich - auch wenn’s mal stressig wird. Wir werden ehrlich und kompetent beraten, auch bei etwas „außergewöhnlichen“ Anfragen. Und: Produktion und Lieferung erfolgen immer absolut zuverlässig. Danke Mixwerk!
Brilliant Voice® arbeitet als Sprechervermittlungsagentur mit nur wenigen Partnerstudios in Deutschland zusammen. Seit 2008 mit dabei ist das Mixwerk. Immer „brilliante" Abwicklung von der Planung, über die Produktion bis zur Lieferung. Darüber hinaus: Eine angenehme und freundliche Atmosphäre. Wir als Agentur schicken unsere Sprecher sehr gerne ins Mixwerk, weil wir wissen, dass sie gut aufgehoben sind. Mixwerk - darauf ist Verlass!
Das Mixwerk ist fester Teil unseres Teams in der Postproduktion, denn als Filmproduktion sind wir auf verlässliche und professionelle Partner angewiesen.
Angenehme Zusammenarbeit, immer zuverlässig und sehr gute Qualität!
Kommentare